A sua Consultoria de Negócios Imobiliários

Os melhores imóveis em São Paulo e região em um só lugar

× Contato por whatsapp
Utilizamos cookies e outras tecnologias semelhantes para melhorar sua experiência em nosso site. Conheça nossa Política de Privacidade
Aceitar

Informações do imóvel

2 banh.
Cód. PT00303

O Oscar 2525 está no eixo do conhecido espigão da cidade de São Paulo que chega na zona oeste através da Av. Paulista. A condição da topografia da cidade é um dos fatores que faz do terreno tão especial. De um lado o espigão e de outro o vale da Av. Sumaré. Assim, por estar no alto e à beira do vale, a visibilidade é incrível e chega até os limites da cidade, o que faz do Oscar 2525 um verdadeiro mirante. Preço e disponibilidade do imóvel sujeitos a alteração sem aviso prévio.

Transação
Venda
Finalidade
Residencial
Tipo de imóvel
Ponto Comercial
Cidade
São Paulo - SP
Bairro
PINHEIROS
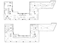
Área privativa
802.45 m²


Mapa

Não é bem o que procurava?
Clique aqui e encomende seu imóvel