A sua Consultoria de Negócios Imobiliários

Os melhores imóveis em São Paulo e região em um só lugar

× Contato por whatsapp
Utilizamos cookies e outras tecnologias semelhantes para melhorar sua experiência em nosso site. Conheça nossa Política de Privacidade
Aceitar

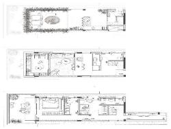
Informações do imóvel

1 quartos
(sendo 1 suíte)
2 banh.
1 Vaga coberta
Cód. AP04469

O edifício traz uma estética elegante e atemporal para a paisagem do bairro. Seus apartamentos têm grandes janelas, ambientes integrados e ótima entrada de luz, além das opções Garden e cobertura, com plantas difíceis de encontrar na região. O Uri está localizado em uma rua tranquila, ao lado de tudo de melhor que o bairro tem para oferecer. O Itaim é um dos lugares mais efervescentes de São Paulo e abriga hoje alguns dos restaurantes mais desejados, o Shopping JK Iguatemi, o Museu da Casa Brasileira e o Parque do Povo, além de estar no coração do maior centro financeiro do país. Um bairro povoado por muitos prédios, mas até a chegada do Uri, carente em valor arquitetônico. Preço e disponibilidade do imóvel sujeitos a alteração sem aviso prévio.

Transação
Venda
Finalidade
Residencial
Tipo de imóvel
Apartamento
Cidade
São Paulo - SP
Bairro
ITAIM BIBI
Área privativa
79.20 m²


Mapa

Não é bem o que procurava?
Clique aqui e encomende seu imóvel