A sua Consultoria de Negócios Imobiliários

Os melhores imóveis em São Paulo e região em um só lugar

× Contato por whatsapp
Utilizamos cookies e outras tecnologias semelhantes para melhorar sua experiência em nosso site. Conheça nossa Política de Privacidade
Aceitar

Informações do imóvel

1 quartos
1 banh.
Cód. AP04387

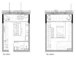
O IPERÓ 111 fica na parte alta da Vila Madalena e no limite entre áreas com zoneamento diferente. Atrás estão os edifícios de gabarito mais alto, enquanto à frente todos os apartamentos têm vista perene desobstruída desde o primeiro andar. A implantação tira proveito do relevo do terreno colocando estúdios, escritórios e uma galeria comercial no embasamento e dessa forma o primeiro apartamento está 7 andares acima do nível da rua, já com a melhor vista da zona oeste. Preço e disponibilidade do imóvel sujeitos a alteração sem aviso prévio.

Transação
Venda
Finalidade
Residencial
Tipo de imóvel
Loft
Cidade
São Paulo - SP
Bairro
VILA MADALENA
Área privativa
49.95 m²


Mapa

Não é bem o que procurava?
Clique aqui e encomende seu imóvel